Projet de construction d'une maison 103 m² avec terrain à DREUX (28)
Projet de construction d'une maison 103 m² avec terrain à DREUX (28)
Description
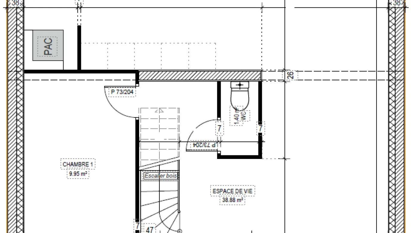
A DREUX sur un terrain de 536 m², MAISONS JLT CONSTRUCTION vous propose de réaliser cette maison neuve d'une surface de 103 m² habitables avec 3 chambres.
MAISONS JLT CONSTRUCTION vous propose les prestations suivantes :
- Plan sur-mesure et personnalisé de 2 à 6 chambres
- Mode de chauffage au choix
- Grands choix d'équipements et de prestations
- Matériaux de qualité selon les normes en vigueur
- Accompagnement dans le choix et l’acquisition du terrain
- Construction conforme à la nouvelle RE 2020
Informations du terrain : Dreux est une ville dynamique offrant une multitude de commodités pour ses habitants. Le centre-ville compte plus de 100 commerces, 137 restaurants, 21 boulangeries et 16 boucheries.
Le centre commercial « Les Coralines » propose près d’une centaine de magasins.
La gare de Dreux est desservie par la ligne N du Transilien, reliant Paris-Montparnasse en environ 1 heure. La gare propose également des services Intercités et TER Normandie, facilitant les déplacements vers d’autres régions.
Dreux offre une gamme complète d’établissements scolaires, des écoles maternelles aux lycées, ainsi que des infrastructures sportives et culturelles pour les enfants et les adolescents.
Demandez une étude gratuite et personnalisée de votre projet de construction !
A DREUX sur un terrain de 536 m², MAISONS JLT CONSTRUCTION vous propose de réaliser cette maison neuve d'une surface de 103 m² habitables avec 3 chambres.
MAISONS JLT CONSTRUCTION vous propose les prestations suivantes :
- Plan sur-mesure et personnalisé de 2 à 6 chambres
- Mode de chauffage au choix
- Grands choix d'équipements et de prestations
- Matériaux de qualité selon les normes en vigueur
- Accompagnement dans le choix et l’acquisition du terrain
- Construction conforme à la nouvelle RE 2020
Informations du terrain : Dreux est une ville dynamique offrant une multitude de commodités pour ses habitants. Le centre-ville compte plus de 100 commerces, 137 restaurants, 21 boulangeries et 16 boucheries.
Le centre commercial « Les Coralines » propose près d’une centaine de magasins.
La gare de Dreux est desservie par la ligne N du Transilien, reliant Paris-Montparnasse en environ 1 heure. La gare propose également des services Intercités et TER Normandie, facilitant les déplacements vers d’autres régions.
Dreux offre une gamme complète d’établissements scolaires, des écoles maternelles aux lycées, ainsi que des infrastructures sportives et culturelles pour les enfants et les adolescents.
Demandez une étude gratuite et personnalisée de votre projet de construction !
Contactez Marie-Emmanuelle TOUZEAU au 06 75 16 71 01 ou au 01 30 49 27 20 (JLT CONSTRUCTION - Agence de Coignières).
Prix avec assurance dommages-ouvrage comprise, VRD non compris, terrain viabilisé, adaptation non comprise, assainissement non compris, frais de notaire non compris, taxes non comprises, frais divers non compris. Terrain sélectionné et vu pour vous sous réserve de disponibilité et au prix indiqué par notre partenaire foncier. Conditions et visuels non contractuels.
En bref
- Modèle présenté : DREUX
- Surface : 103 m²
- Pièces : 5
- Chambres : 3
- Garage : 0 m2
- Commune : 28100 Dreux
- Surface terrain : 536 m²
- En lotissement : non
- Prix : 262 000 €
Demander une étude gratuite personnalisée


