Projet de construction d'une maison 85 m² avec terrain à PIERRES (28)
Projet de construction d'une maison 85 m² avec terrain à PIERRES (28)
Description
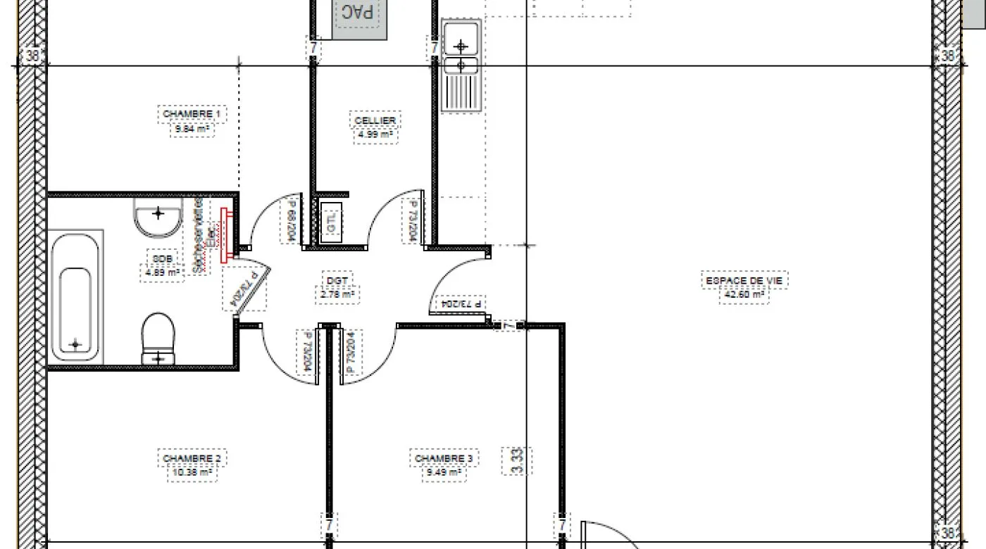
A PIERRES sur un terrain de 700 m², MAISONS JLT CONSTRUCTION vous propose de réaliser cette maison neuve d'une surface de 85 m² habitables avec 3 chambres.
MAISONS JLT CONSTRUCTION vous propose les prestations suivantes :
- Plan sur-mesure et personnalisé de 2 à 6 chambres
- Mode de chauffage au choix
- Grands choix d'équipements et de prestations
- Matériaux de qualité selon les normes en vigueur
- Accompagnement dans le choix et l’acquisition du terrain
- Construction conforme à la nouvelle RE 2020
Informations du terrain : Cette maison est située dans un environnement calme et agréable, à proximité immédiate des infrastructures scolaires. Écoles maternelle et primaire accessibles à pied depuis le lotissement. Crèche à quelques pas pour faciliter le quotidien des jeunes parents. Commerces et services essentiels à proximité.
Accès rapide aux axes routiers et transports.
Ce projet représente une opportunité idéale pour les familles à la recherche d’un cadre de vie serein et pratique.
Demandez une étude gratuite et personnalisée de votre projet de construction !
A PIERRES sur un terrain de 700 m², MAISONS JLT CONSTRUCTION vous propose de réaliser cette maison neuve d'une surface de 85 m² habitables avec 3 chambres.
MAISONS JLT CONSTRUCTION vous propose les prestations suivantes :
- Plan sur-mesure et personnalisé de 2 à 6 chambres
- Mode de chauffage au choix
- Grands choix d'équipements et de prestations
- Matériaux de qualité selon les normes en vigueur
- Accompagnement dans le choix et l’acquisition du terrain
- Construction conforme à la nouvelle RE 2020
Informations du terrain : Cette maison est située dans un environnement calme et agréable, à proximité immédiate des infrastructures scolaires. Écoles maternelle et primaire accessibles à pied depuis le lotissement. Crèche à quelques pas pour faciliter le quotidien des jeunes parents. Commerces et services essentiels à proximité.
Accès rapide aux axes routiers et transports.
Ce projet représente une opportunité idéale pour les familles à la recherche d’un cadre de vie serein et pratique.
Demandez une étude gratuite et personnalisée de votre projet de construction !
Contactez Marie-Emmanuelle TOUZEAU au 06 75 16 71 01 ou au 01 30 49 27 20 (JLT CONSTRUCTION - Agence de Coignières).
Prix avec assurance dommages-ouvrage comprise, VRD non compris, terrain viabilisé, adaptation non comprise, assainissement compris, frais de notaire non compris, taxes non comprises, frais divers non compris. Terrain sélectionné et vu pour vous sous réserve de disponibilité et au prix indiqué par notre partenaire foncier. Conditions et visuels non contractuels.
En bref
- Modèle présenté : PIERRES
- Surface : 85 m²
- Pièces : 4
- Chambres : 3
- Garage : 0 m2
- Commune : 28130 Pierres
- Surface terrain : 700 m²
- En lotissement : non
- Prix : 245 000 €
Demander une étude gratuite personnalisée


