Projet de construction d'une maison 90 m² avec terrain à VOVES (28)
Projet de construction d'une maison 90 m² avec terrain à VOVES (28)
Description
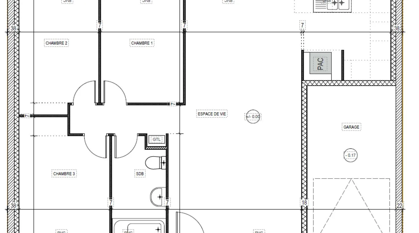
A VOVES sur un terrain de 531 m², MAISONS JLT CONSTRUCTION vous propose de réaliser cette maison neuve d'une surface de 90 m² habitables avec 3 chambres.
MAISONS JLT CONSTRUCTION vous propose les prestations suivantes :
- Plan sur-mesure et personnalisé de 2 à 6 chambres
- Mode de chauffage au choix
- Grands choix d'équipements et de prestations
- Matériaux de qualité selon les normes en vigueur
- Accompagnement dans le choix et l’acquisition du terrain
- Construction conforme à la nouvelle RE 2020
Informations du terrain : Voves offre une gamme complète de services et de commerces pour faciliter votre quotidien :
Supermarchés, boulangeries, services santé, éducation et sportives.
La commune dispose de 5 médecins généralistes, 2 chirurgiens-dentistes, 2 masseurs-kinésithérapeutes, 2 pédicures-podologues, 2 diététiciens et 1 psychologue.
Éducation : Écoles maternelle et primaire accessibles, ainsi qu’une crèche à proximité du lotissement.
Infrastructures sportives telles que terrains de tennis, boulodrome et parcours de randonnée.
Événements culturels réguliers, y compris des brocantes, ateliers pour enfants, festivals et concerts
Demandez une étude gratuite et personnalisée de votre projet de construction !
A VOVES sur un terrain de 531 m², MAISONS JLT CONSTRUCTION vous propose de réaliser cette maison neuve d'une surface de 90 m² habitables avec 3 chambres.
MAISONS JLT CONSTRUCTION vous propose les prestations suivantes :
- Plan sur-mesure et personnalisé de 2 à 6 chambres
- Mode de chauffage au choix
- Grands choix d'équipements et de prestations
- Matériaux de qualité selon les normes en vigueur
- Accompagnement dans le choix et l’acquisition du terrain
- Construction conforme à la nouvelle RE 2020
Informations du terrain : Voves offre une gamme complète de services et de commerces pour faciliter votre quotidien :
Supermarchés, boulangeries, services santé, éducation et sportives.
La commune dispose de 5 médecins généralistes, 2 chirurgiens-dentistes, 2 masseurs-kinésithérapeutes, 2 pédicures-podologues, 2 diététiciens et 1 psychologue.
Éducation : Écoles maternelle et primaire accessibles, ainsi qu’une crèche à proximité du lotissement.
Infrastructures sportives telles que terrains de tennis, boulodrome et parcours de randonnée.
Événements culturels réguliers, y compris des brocantes, ateliers pour enfants, festivals et concerts
Demandez une étude gratuite et personnalisée de votre projet de construction !
Contactez Marie-Emmanuelle TOUZEAU au 06 75 16 71 01 ou au 01 30 49 27 20 (JLT CONSTRUCTION - Agence de Coignières).
Prix avec assurance dommages-ouvrage comprise, VRD non compris, terrain viabilisé, adaptation non comprise, assainissement compris, frais de notaire non compris, taxes non comprises, frais divers non compris. Terrain sélectionné et vu pour vous sous réserve de disponibilité et au prix indiqué par notre partenaire foncier. Conditions et visuels non contractuels.
En bref
- Modèle présenté : VOVES
- Surface : 90 m²
- Pièces : 4
- Chambres : 3
- Garage : 15 m2
- Commune : 28150 Voves
- Surface terrain : 495 m²
- En lotissement : non
- Prix : 233 400 €
Demander une étude gratuite personnalisée


