Projet de construction d'une maison 100 m² avec terrain à BEHOUST (78)
Projet de construction d'une maison 100 m² avec terrain à BEHOUST (78)
Description
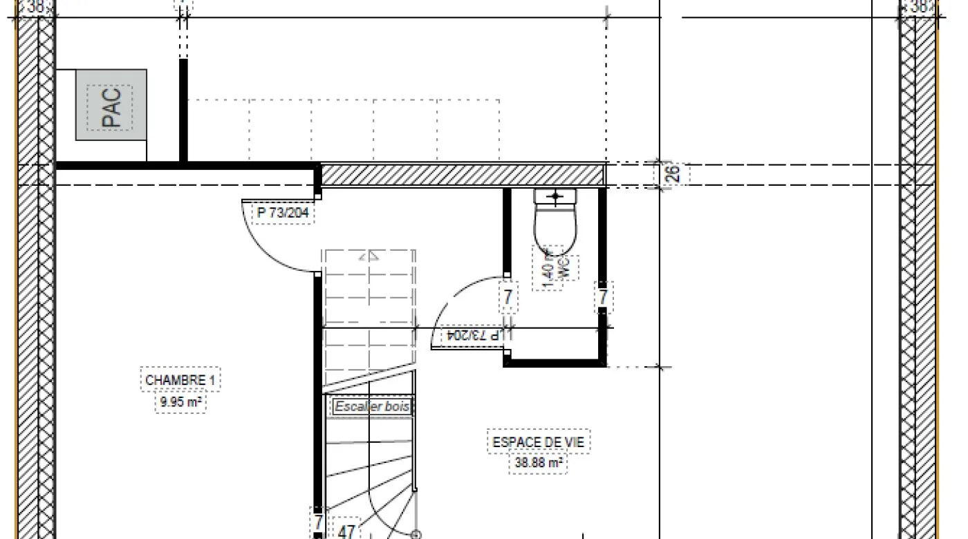
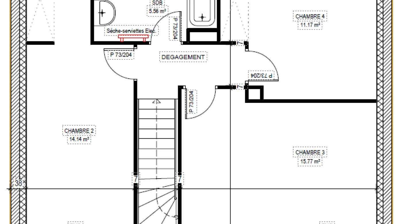
A BEHOUST sur un terrain de 700 m², MAISONS JLT CONSTRUCTION vous propose de réaliser cette maison neuve d'une surface de 100 m² habitables avec 4 chambres.
MAISONS JLT CONSTRUCTION vous propose les prestations suivantes :
- Plan sur-mesure et personnalisé de 2 à 6 chambres
- Mode de chauffage au choix
- Grands choix d'équipements et de prestations
- Matériaux de qualité selon les normes en vigueur
- Accompagnement dans le choix et l’acquisition du terrain
- Construction conforme à la nouvelle RE 2020
Informations du terrain : Béhoust est une commune paisible de 460 habitants, riche en patrimoine historique. Vous y découvrirez le château de Béhoust, datant du XVIIIᵉ siècle, classé monument historique.
Une école élémentaire publique est présente dans la commune, offrant un environnement éducatif de qualité pour vos enfants.
La gare d’Orgerus – Béhoust, située à proximité, dessert la ligne N du Transilien, facilitant vos déplacements vers Paris-Montparnasse en environ 44 minutes.
Ce projet représente une opportunité unique d’acquérir une maison neuve dans un cadre verdoyant et historique, tout en bénéficiant des commodités essentielles à proximité.
Demandez une étude gratuite et personnalisée de votre projet de construction !
A BEHOUST sur un terrain de 700 m², MAISONS JLT CONSTRUCTION vous propose de réaliser cette maison neuve d'une surface de 100 m² habitables avec 4 chambres.
MAISONS JLT CONSTRUCTION vous propose les prestations suivantes :
- Plan sur-mesure et personnalisé de 2 à 6 chambres
- Mode de chauffage au choix
- Grands choix d'équipements et de prestations
- Matériaux de qualité selon les normes en vigueur
- Accompagnement dans le choix et l’acquisition du terrain
- Construction conforme à la nouvelle RE 2020
Informations du terrain : Béhoust est une commune paisible de 460 habitants, riche en patrimoine historique. Vous y découvrirez le château de Béhoust, datant du XVIIIᵉ siècle, classé monument historique.
Une école élémentaire publique est présente dans la commune, offrant un environnement éducatif de qualité pour vos enfants.
La gare d’Orgerus – Béhoust, située à proximité, dessert la ligne N du Transilien, facilitant vos déplacements vers Paris-Montparnasse en environ 44 minutes.
Ce projet représente une opportunité unique d’acquérir une maison neuve dans un cadre verdoyant et historique, tout en bénéficiant des commodités essentielles à proximité.
Demandez une étude gratuite et personnalisée de votre projet de construction !
Contactez Marie-Emmanuelle TOUZEAU au 06 75 16 71 01 ou au 01 30 49 27 20 (JLT CONSTRUCTION - Agence de Coignières).
Prix avec assurance dommages-ouvrage comprise, VRD non compris, terrain viabilisé, adaptation non comprise, assainissement non compris, frais de notaire non compris, taxes non comprises, frais divers non compris. Terrain sélectionné et vu pour vous sous réserve de disponibilité et au prix indiqué par notre partenaire foncier. Conditions et visuels non contractuels.
En bref
- Modèle présenté : BEHOUST
- Surface : 100 m²
- Pièces : 5
- Chambres : 4
- Garage : 15 m2
- Commune : 78910 Béhoust
- Surface terrain : 700 m²
- En lotissement : non
- Prix : 334 000 €
Demander une étude gratuite personnalisée



