Projet de construction d'une maison 136 m² avec terrain à THOIRY (78)
Projet de construction d'une maison 136 m² avec terrain à THOIRY (78)
Description
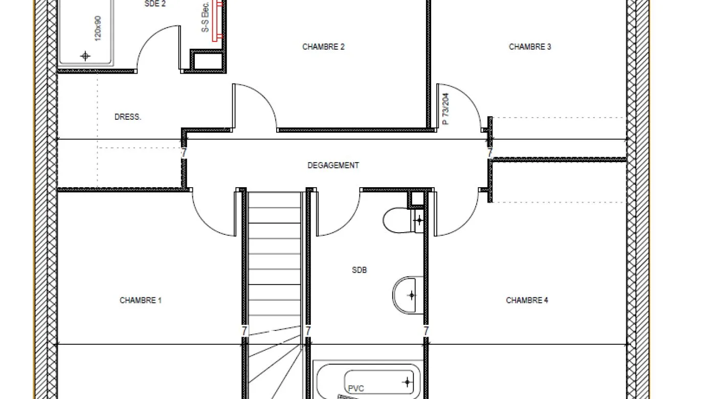
A THOIRY sur un terrain de 1000 m², MAISONS JLT CONSTRUCTION vous propose de réaliser cette maison neuve d'une surface de 136 m² habitables avec 4 chambres.
MAISONS JLT CONSTRUCTION vous propose les prestations suivantes :
- Plan sur-mesure et personnalisé de 2 à 6 chambres
- Mode de chauffage au choix
- Grands choix d'équipements et de prestations
- Matériaux de qualité selon les normes en vigueur
- Accompagnement dans le choix et l’acquisition du terrain
- Construction conforme à la nouvelle RE 2020
Informations du terrain : Thoiry offre une gamme complète de services pour faciliter votre quotidien :
École maternelle intercommunale, école élémentaire.
Boulangerie, fleuriste, épicerie, restaurants et autres services essentiels sont disponibles dans le village. Présence d’un cabinet médical pour vos besoins de santé. Parc zoologique de Thoiry : Attraction phare de la région, idéale pour des sorties en famille.
Demandez une étude gratuite et personnalisée de votre projet de construction !
A THOIRY sur un terrain de 1000 m², MAISONS JLT CONSTRUCTION vous propose de réaliser cette maison neuve d'une surface de 136 m² habitables avec 4 chambres.
MAISONS JLT CONSTRUCTION vous propose les prestations suivantes :
- Plan sur-mesure et personnalisé de 2 à 6 chambres
- Mode de chauffage au choix
- Grands choix d'équipements et de prestations
- Matériaux de qualité selon les normes en vigueur
- Accompagnement dans le choix et l’acquisition du terrain
- Construction conforme à la nouvelle RE 2020
Informations du terrain : Thoiry offre une gamme complète de services pour faciliter votre quotidien :
École maternelle intercommunale, école élémentaire.
Boulangerie, fleuriste, épicerie, restaurants et autres services essentiels sont disponibles dans le village. Présence d’un cabinet médical pour vos besoins de santé. Parc zoologique de Thoiry : Attraction phare de la région, idéale pour des sorties en famille.
Demandez une étude gratuite et personnalisée de votre projet de construction !
Contactez Marie-Emmanuelle TOUZEAU au 06 75 16 71 01 ou au 01 30 49 27 20 (JLT CONSTRUCTION - Agence de Coignières).
Prix avec assurance dommages-ouvrage comprise, VRD non compris, terrain viabilisé, adaptation non comprise, assainissement non compris, frais de notaire non compris, taxes non comprises, frais divers non compris. Terrain sélectionné et vu pour vous sous réserve de disponibilité et au prix indiqué par notre partenaire foncier. Conditions et visuels non contractuels.
En bref
- Modèle présenté : THOIRY
- Surface : 136 m²
- Pièces : 6
- Chambres : 4
- Garage : 0 m2
- Commune : 78770 Thoiry
- Surface terrain : 1000 m²
- En lotissement : non
- Prix : 500 000 €
Demander une étude gratuite personnalisée



